Executor's Auction
A spectacular opportunity to establish your family in one of the areas most loved avenues with this spacious & sun filled 5 bedroom home in original condition on approx. 550sqm bordering the prestigious Royal Melbourne Golf Course. Enjoy the rare privilege of direct course access and capitalise on the opportunity to capture...
Executor's Auction
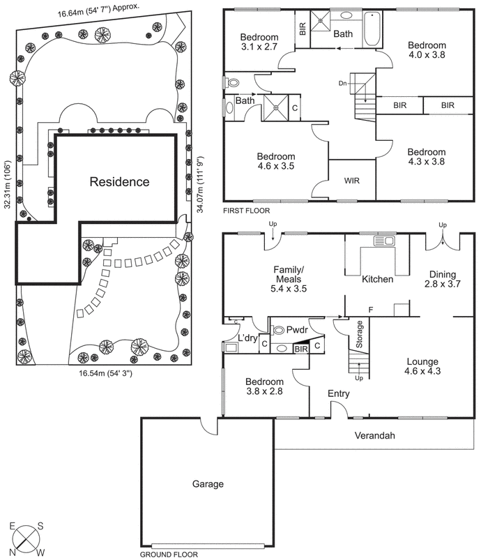
A spectacular opportunity to establish your family in one of the areas most loved avenues with this spacious & sun filled 5 bedroom home in original condition on approx. 550sqm bordering the prestigious Royal Melbourne Golf Course. Enjoy the rare privilege of direct course access and capitalise on the opportunity to capture uninterrupted fairway views with a value-adding update, renovation or extension. Offering seventies flair within a comfortable, current day lay out featuring welcoming formal lounge with adjoining dining as well as separate family/meals both stepping out to a sun drenched backyard with a panoramic backdrop. A central kitchen in mostly original condition services both living and entertaining zones. Generous accommodation includes an upper level, light filled master with walk in robe & en suite, 3 good sized bedrooms all with robes (2 overlooking the golf course) and a family bathroom. Add a ground floor 5th bedroom or study, powder room, laundry, ducted heating, double garage and big front & rear yards to complete to the immense appeal. Envisage a magnificent family home & lifestyle with all the advantages of an exclusive Vardon Avenue address close to schools, shops, cafes & the bay in the heart of the sought after Sandbelt. For more information about this course side family home with potential plus - Executor's Auction please contact Peter Hickey at Buxton Sandringham on 0412 569 480
Listing Website