44 Bulli Street, Moorabbin

$800,000

B 2 b 1 C 2

Buxton Hampton East
918 Nepean Highway,
HAMPTON EAST VIC 3188

Get in touch

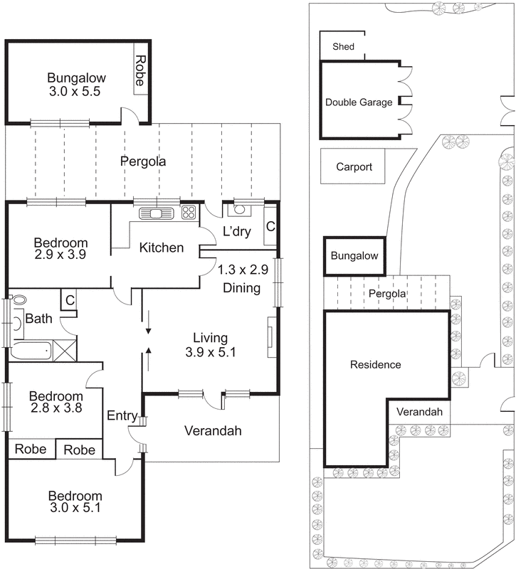
Love the Space...Size up the Scope!

Add one, build two, start anew or extend this one ...whatever your plans the future shines bright! Well-positioned on approx 650sqm/7000sqft, this brick veneer offers space & opportunity in your...

View More

Love the Space...Size up the Scope!

Add one, build two, start anew or extend this one ...whatever your plans the future shines bright! Well-positioned on approx 650sqm/7000sqft, this brick veneer offers space & opportunity in your re-development or renovation plans (subject to Council approval). Close to Southmoor Primary & Bricker Reserve, this solid performer offers two robed...

View More

Location  

Get Directions
Map showing location of 44 Bulli Street, Moorabbin VIC 3189

Buxton Hampton East 918 Nepean Highway,
HAMPTON EAST VIC 3188

Get in touch

Want to know what your property's worth?

Looking to buy or sell a property? Click below to receive a full report highlighting market value, recent sales, rental history, suburb report and more.
Download Property Report

Enquire about this property

Submitting...

Success! Your enquiry has been submitted.

There was an error submitting the form. Please try again later.

Similar Properties

Sold
sold

Undisclosed

4/1017 Nepean Highway, Moorabbin VIC 3189

B 2 b 1 C 1

Sold
sold

Undisclosed

2/1-3 Fletcher Street, Moorabbin VIC 3189

B 2 b 1 C 2

Sold
sold

$820,000

2/13 Schofield Street, Moorabbin VIC 3189

B 2 b 1 C 1