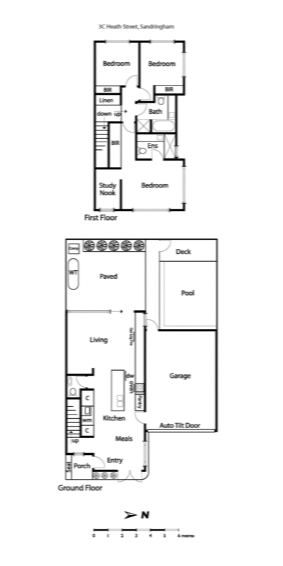
Striking architect design and a sparkling plunge pool in private north-facing gardens, this is an all-round low-maintenance lifestyle investment. This cutting-edge three bedroom 2.5 bathroom residence is a showcase of luxury design with living and dining areas separated by a streamlined Miele appliance kitchen, very private rear courtyard, a...
Striking architect design and a sparkling plunge pool in private north-facing gardens, this is an all-round low-maintenance lifestyle investment. This cutting-edge three bedroom 2.5 bathroom residence is a showcase of luxury design with living and dining areas separated by a streamlined Miele appliance kitchen, very private rear courtyard, a state-of-the-art master-suite and double auto garage.
Luxury appointed with wideboard Oak floors, thick CaesarStone benchtops and an impressive gas fireplace, this easy-living home is secured by video intercom and an alarm, climate controlled over two zones and so easily maintained - with auto-cleaning and remote operation for the fully-tiled glass fenced solar heated pool.
Secluded, secure and private in a leafy cul-de-sac, at the rear of a near new luxury group, yet so central to Sandringham's Village and transport, this is the ultimate lock-and-leave lifestyle investment, with a wealth of rewards - not least among them an existing rental return of $3,889pcm until October 2015 and the prospect of keeping an excellent tenant. Add the depreciation writedowns on a less than 2 year old property, and a better than 4% yield, then there is no better investment right now than Bayside bricks & mortar. For more information about this cutting edge home contact Peter Hickey
Listing Website