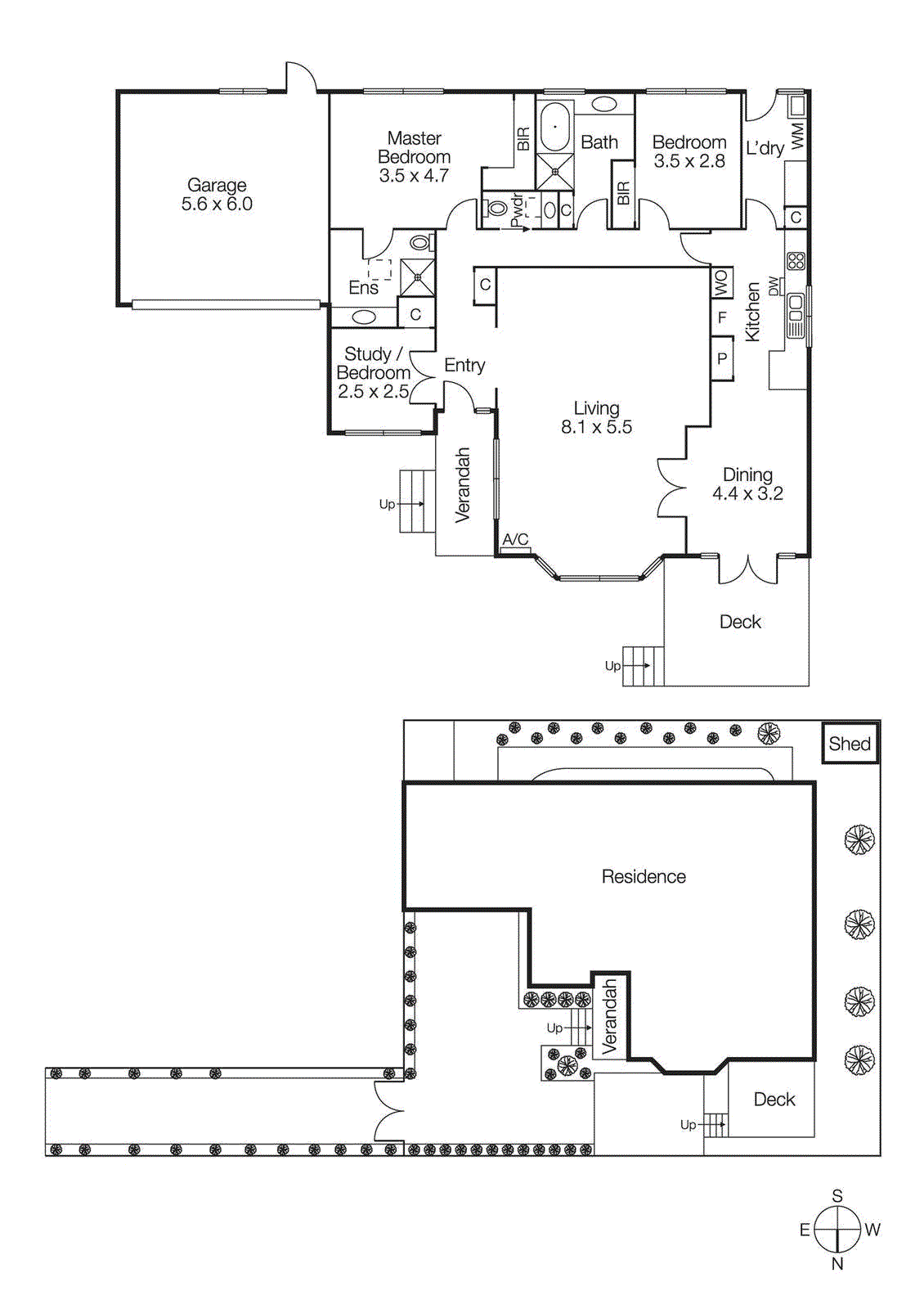
Elevate your lifestyle with sought after, single level ease in a premium Brighton location tucked between Dendy Village, Church Street and the bay. Beautifully presented to show off a sun filled, spacious layout oriented to capture northerly light and surrounded by 4-sides of garden with little maintenance required.
Securely set to the rear of...
Elevate your lifestyle with sought after, single level ease in a premium Brighton location tucked between Dendy Village, Church Street and the bay. Beautifully presented to show off a sun filled, spacious layout oriented to capture northerly light and surrounded by 4-sides of garden with little maintenance required.
Securely set to the rear of only two, attractive clinker brick homes, offering complete peace and privacy beyond a long, gated drive. Picture windows illuminate generous living with a stylish bay window, the perfect spot to create a sunny sitting or dining area. A classically appointed, timber kitchen and spacious meals area open to north-facing decking designed to entertain or just soak up the sun.
The master bedroom features a dressing area with built in robes as well as a sky-lit en suite, while the second bedroom (built in robes) accesses the main bathroom and a separate powder room. A versatile third bedroom or ideal nursery is currently presented as a light filled home office adding to the broad appeal.
A large laundry opens to the rear with handy access to a double, automatic garage, there’s also plenty of gated, driveway parking. Centrally heated with reverse cycle air conditioning in the main living zone. Enjoy pedestrian access to Dendy Village’s gourmet food stores, cafés and shops with Church Street, Bay Street, parks, schools, the bus or train and Brighton’s iconic Bathing Box beach near by.
Downsize or start with immediate comfort and sunlit style, or further enhance to add future value in a highly desired pocket of blue chip, Brighton.
For more information about this sought after, single level town home please call John Clarkson on 0408 153 045 at Buxton Brighton.