A private oasis basking in luxurious indulgence, Shangri-La is a celebration of life lived to its fullest; an unforgettable home with a genuine sense of glamour. Sheltered within the private...
A private oasis basking in luxurious indulgence, Shangri-La is a celebration of life lived to its fullest; an unforgettable home with a genuine sense of glamour.
Sheltered within the private seclusion of a high wall and established tropical greenery, this sanctuary has been masterfully crafted to integrate with the pure joy of its outdoor living in which a resort-style entertainment oasis with gas heated swimming pool and spa holds pride of place. Here, everyday family fun and large-scale entertaining are handled with effortless ease.
Opulent from the outset, interior spaces are defined by soaring ceilings, vast expanses of glass, and the dramatic use of timber, Silestone quartz and limestone throughout a spacious and seductive floorplan dedicated to luxury and practicality.
Serene outdoor surroundings and an influx of natural light frame the gorgeous living environs where an open-plan living and dining area comes complete with showpiece fireplace, creating a wonderful setting for comfort and relaxation.
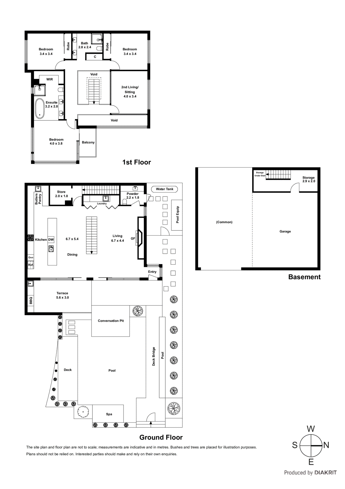
Stacking glass sliding doors seamlessly connect to the breathtaking outdoors offering a myriad of entertaining options in glorious garden surrounds. Sit back and relax on the deck, enjoy a peaceful morning coffee on the alfresco terrace, or entertain family and friends beneath the dynamic covered terrace featuring cafe blinds and louvre windows to maximise ventilation. With an in-built barbecue kitchen enhanced by high-end finishes, this fully-enclosed zone is outdoor living at its finest.
The high-performance kitchen is both a place of beauty and a culinary powerhouse. Flawlessly blending function and design, standout features include premium Miele appliances, stunning breakfast bar, abundant cabinetry, and walk-in pantry.
Up the floating glass and timber staircase, a glass-wrapped retreat creates instant impact. Family accommodation is zoned on this level and includes the lavish main bedroom suite enviably enhanced by an open twin-vanity ensuite featuring deep soaker tub, walk-in wardrobe, plantation shutters, and balcony deck overlooking the pool. Two additional bedrooms on this level feature mirrored built-in robes and are serviced by a luxe fully-tiled twin vanity bathroom.
As expected in a home of this calibre, the additional offerings are extensive, including dark oak timber flooring, European laundry concealed behind a feature oak wall, sumptuous ground floor powder room, zoned ducted heating and air-conditioning and two secure basement car spaces.
Nestled within a highly sought-after pocket, with access to the beach and Bay Trail, golf courses and sports reserves, nearby shops, cafes, bars, and restaurants at the Concourse and Seaview Village, a range of quality schools including zoning for Beaumaris Secondary College, plus transport, this sublime property offers unbeatable lifestyle appeal.
For more information about this extraordinary resort-style retreat contact Romana Altman or Louise Herterich at Buxton Sandringham.
