Luxuriously appointed and supremely spacious, this sophisticated double storey residence promises a lifestyle of comfort and tranquillity in a premier pocket close to shops, cafes, parks, schools, and...
Luxuriously appointed and supremely spacious, this sophisticated double storey residence promises a lifestyle of comfort and tranquillity in a premier pocket close to shops, cafes, parks, schools, and the beach.
Wrapped in low-maintenance landscaped gardens featuring established trees and plantings, the contemporary sanctuary maximises light, space, and connection to the outdoors delivering a home for enjoyment, relaxation, and effortless entertaining.
Impeccably presented interior dimensions are enhanced by the inspired use of the finest materials including natural stone finishes, the extensive use of glass throughout, bespoke cabinetry, and designer lighting.
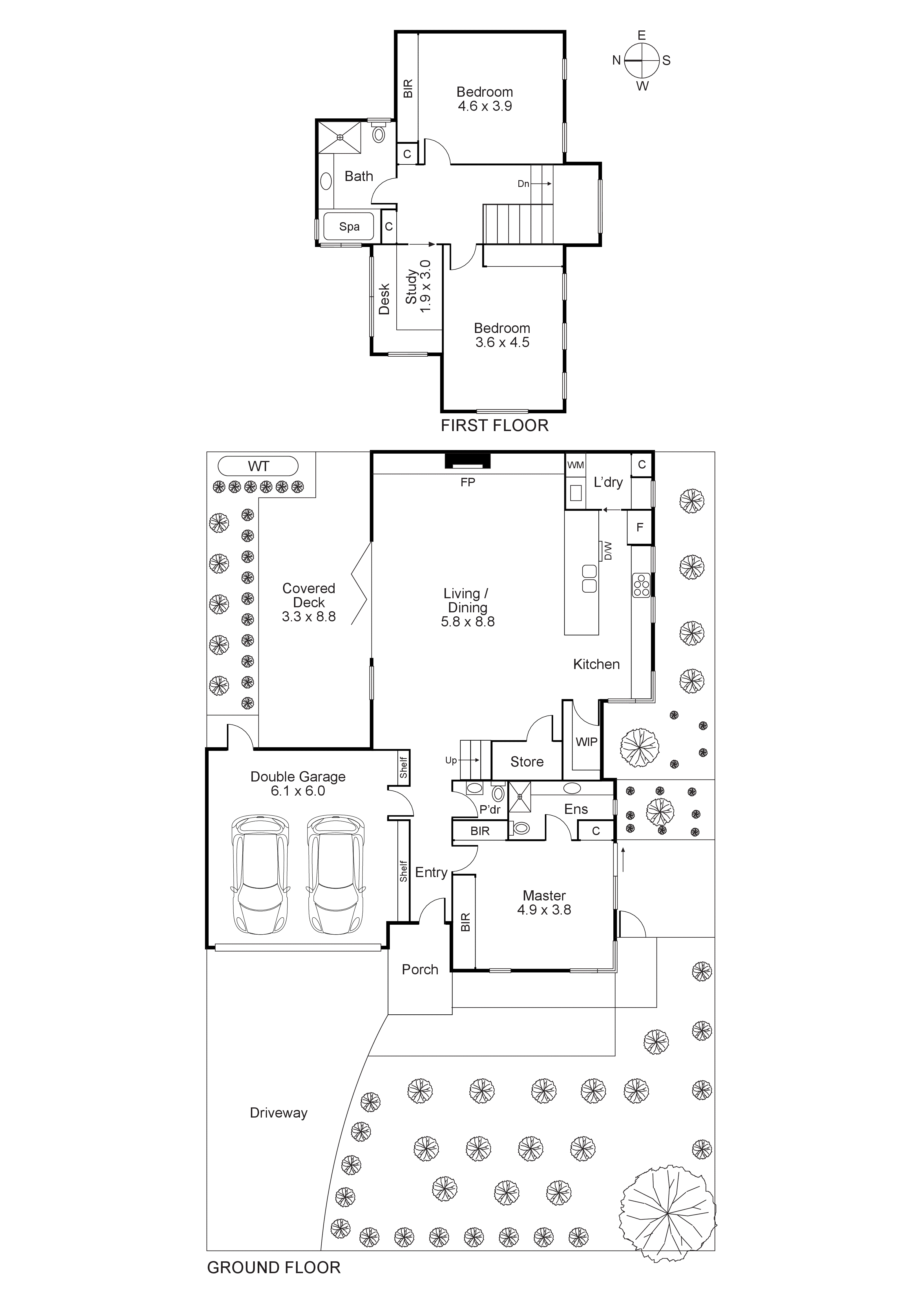
The flowing floorplan moves seamlessly from the entrance hall, with high ceilings and tiled floors, past the lavish master bedroom suite featuring garden vistas, extensive built-in wardrobes, luxurious fully tiled ensuite, and sliding door to private courtyard.
Further along the hall, a sleek powder room precedes the expansive family living zone at the rear.
Forming the heart of the family zone with a generous waterfall breakfast island, the streamlined kitchen showcases stone benchtops, abundant cabinetry, a suite of Smeg appliances including 5 burner gas cooktop, 90cm oven, dishwasher, rangehood and convection microwave, while a Fisher and Paykel fridge/freezer, is plumbed for water and ice, and an adjoining storage-rich walk-in pantry is guaranteed to make entertaining easy.
Light floods the north-facing dining and living zone where expanses of glazing combine with a gas fireplace to create a supremely elegant space. Extending the living space further, bifold doors open to the fabulous al fresco entertainment deck with Vergola rain sensing louvre system - perfect for year round living and dining, against a secluded leafy backdrop.
Upstairs, two beautifully proportioned bedrooms with built-in robes are accompanied by a dedicated study/home office with built in desk and file drawers, and a sumptuous bathroom with spa bath and separate shower.
Complemented by security alarm, video intercom, separate laundry, 3 zoned reverse cycle heating and air conditioning, ducted vacuum, 5.28kW solar system, drip watering system to main garden, 2000 litre water tank servicing WCs and garden, and auto double garage with internal and rear access.
Perfectly located for easy walking to Banksia Reserve, Beaumaris Primary School, the Concourse, Stella Maris Catholic School, Keys Street shops and cafes, bus services, and the beach. Plus, desirable zoning for both Beaumaris Secondary College and Mentone Girls’ Secondary College.
For more information about this sensational corner townhouse contact Romana Altman or Louise Herterich at Buxton Sandringham.
