Enjoying an exceptional location, this immaculate two-storey townhouse is perfectly poised for an effortless lifestyle of convenience. Boasting four bedrooms, two bathrooms and dual living zones, and within walking distance of local shops, cafés, schools and parkland, this contemporary beauty presents an exceptional opportunity for families to...
Enjoying an exceptional location, this immaculate two-storey townhouse is perfectly poised for an effortless lifestyle of convenience. Boasting four bedrooms, two bathrooms and dual living zones, and within walking distance of local shops, cafés, schools and parkland, this contemporary beauty presents an exceptional opportunity for families to secure their future.
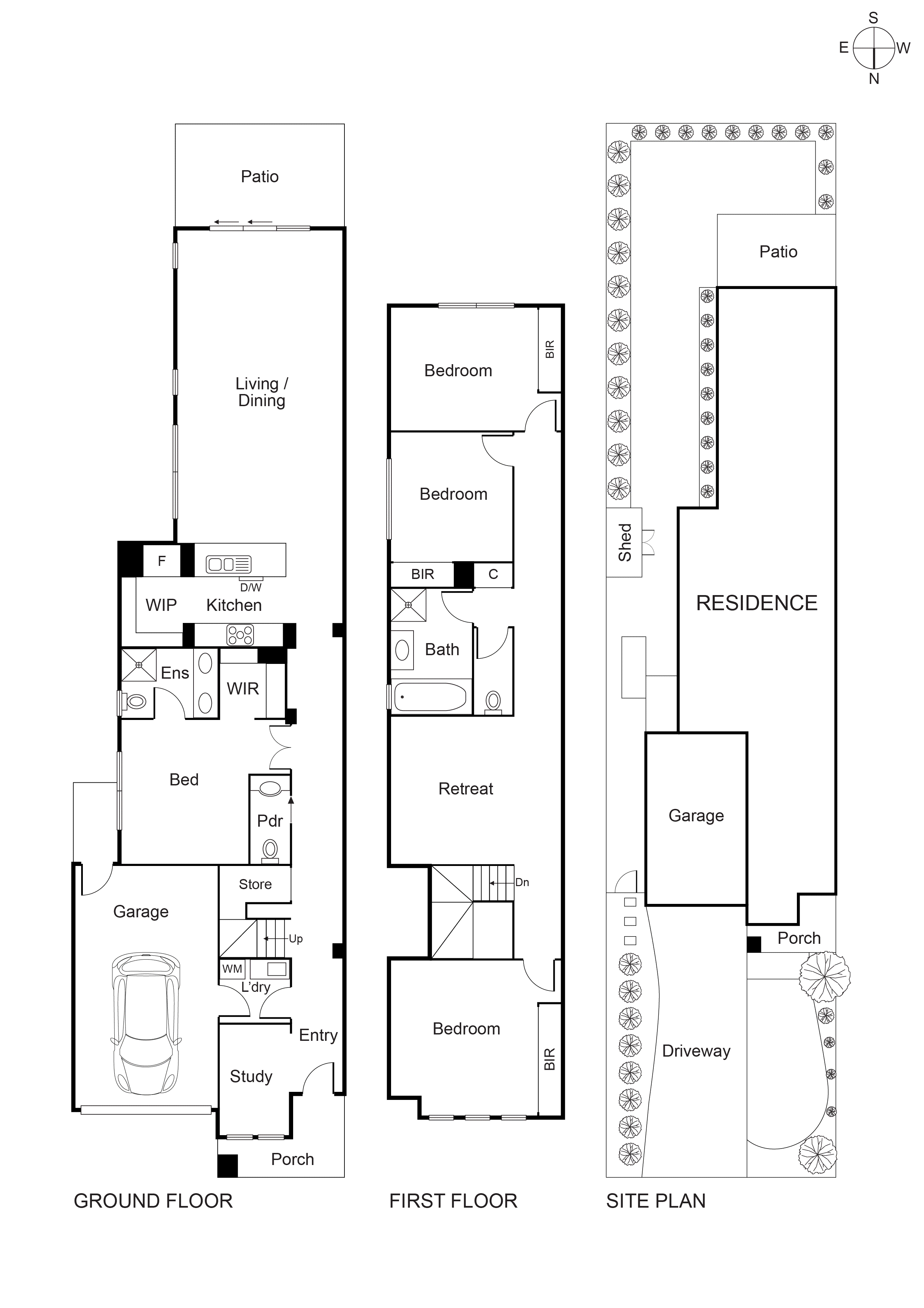
Arrive home to the allure of stylish interiors and an easy-care environment, with the spacious open plan living zone awash with contemporary tones and finishes. Connoisseurs will delight in the sleek, modern kitchen flaunting premium stainless steel appliances and walk-in pantry, while outdoor entertaining is easy with glass sliding doors revealing a serene paved alfresco surrounded by lush lawns and low-maintenance gardens.
Privately positioned on the ground floor, the generously designed master features a walk-in robe and luxe ensuite, while three further robed bedrooms are positioned upstairs along with a sparkling bathroom and versatile retreat.
Ducted heating and evaporative cooling provide comfort in every season, while a dedicated laundry and single garage add convenience. Ideally located mere minutes from the Centre Road precinct, Oakleigh Central, Eaton Mall and numerous golf clubs, with local schools and parkland nearby.