Brand New & ready to move into - enjoy an effortless modern lifestyle in this stylish & spacious four-bedroom retreat. Ideally located within walking distance of everything you need, the home is spread across two enticing levels and features dual living zones, making it ideal for families.
Stepping inside, you will discover a privately...
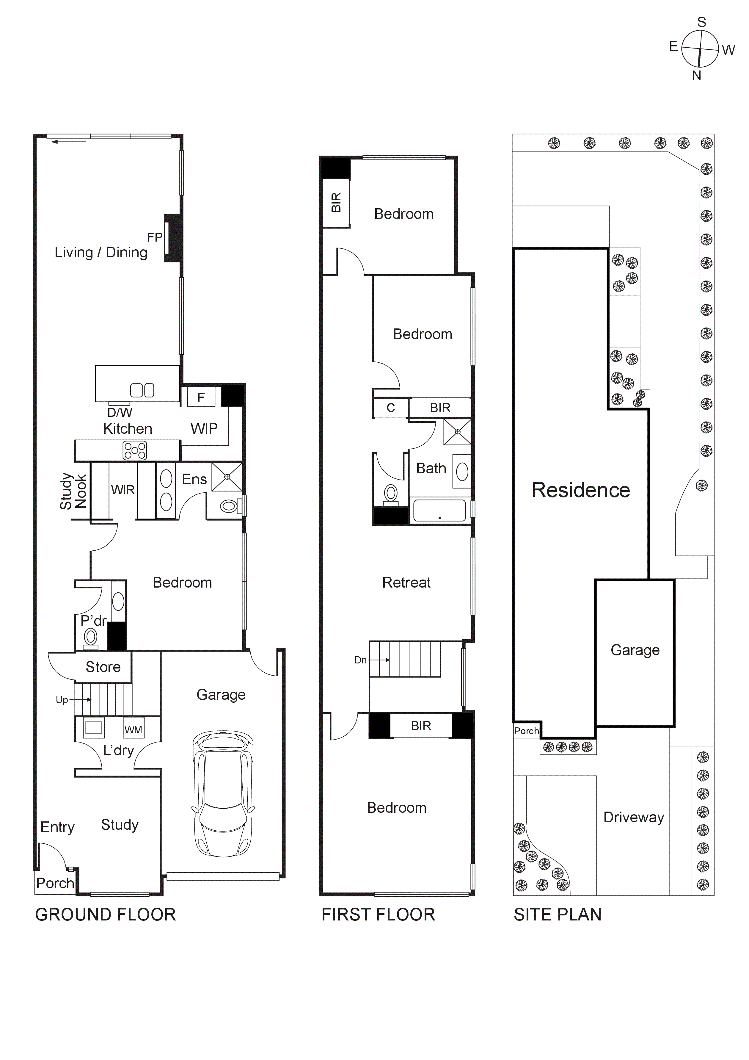
Brand New & ready to move into - enjoy an effortless modern lifestyle in this stylish & spacious four-bedroom retreat. Ideally located within walking distance of everything you need, the home is spread across two enticing levels and features dual living zones, making it ideal for families.
Stepping inside, you will discover a privately positioned study nook upon entry, alongside a spacious ground-floor bedroom complete with walk-in robe and a luxurious fully tiled ensuite with double vanity. Expansive open plan living is on offer at the rear of the home, complemented by an electric fireplace and access to the immaculate backyard with paved patio, while gourmets will relish the sleek kitchen flaunting stone surfaces, premium appliances and large walk-in pantry.
Journeying upstairs, a central spacious retreat offers a tranquil second living space, while three robed bedrooms (including the huge main) share the generous family bathroom. Additional inclusions of ducted heating and cooling, storage under the timber staircase and single remote garage add to the appeal.
Positioned to perfection for convenience, just a short walk to Moorabbin Reserve, train station and central shopping hub, and within easy reach of local schools including Moorabbin Primary and Bentleigh Secondary College everything is at your doorstep!