Commanding attention with its striking corner presence and innovative architectural design, this contemporary town residence, set within a Paal Grant-designed garden, is an entertainer’s dream....
Commanding attention with its striking corner presence and innovative architectural design, this contemporary town residence, set within a Paal Grant-designed garden, is an entertainer’s dream. Elevated to capture an abundance of natural light and lush green views, this three-bedroom home harmonises impeccably with its verdant surroundings, offering a serene retreat complemented by an al fresco haven.
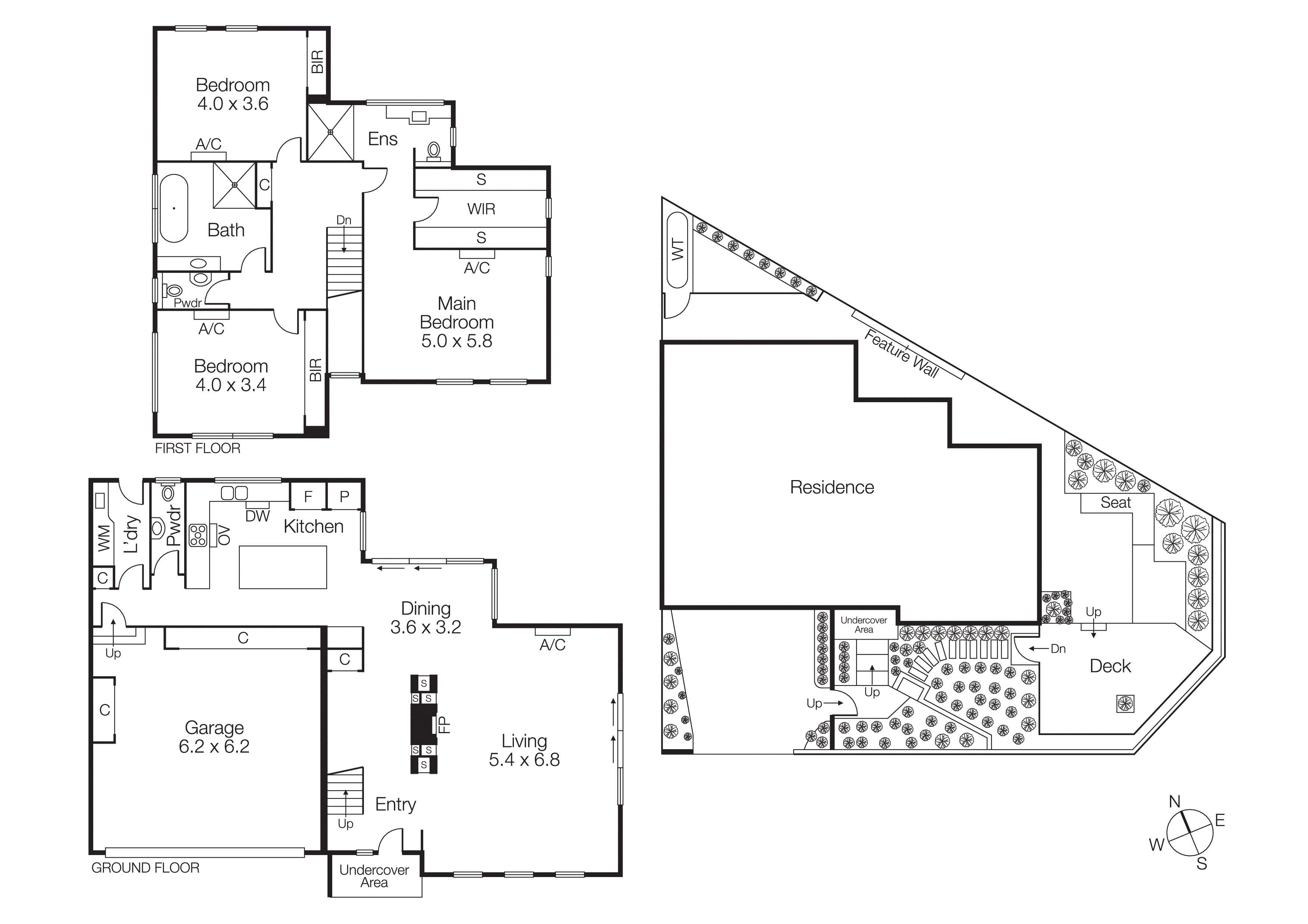
The ground level features elegant Blackbutt hardwood flooring and tall glass sliders that seamlessly connect to sun-swept outdoor areas. Separate living and dining zones are enhanced by a gas fireplace and a prestige kitchen showcasing a Caesarstone island bench, integrated appliances such as a Miele dishwasher and a fridge/freezer, and a window splashback that invites northern light, infusing the space with warmth and brightness.
Paal Grant, renowned for his work on The Block, has masterfully transformed this angular corner site into a blissfully private tropical oasis. Laser-cut screens, towering bamboo, built-in seating, and a sunlit deck create multiple inviting spaces for entertaining, relaxation, or play. A dedicated dining area and practical space for drying and pets further enhance the outdoor experience.
Upstairs, a floating timber and glass staircase leads to a meticulously appointed accommodation wing. The luxurious main suite features a walk-in dressing room and a Caesarstone vanity in the en suite. The two additional bedrooms share a pristine bathroom with a designer bathtub and a separate powder room. The ground floor includes a guest powder room, a stone-topped laundry, and direct access to a large remote double garage.
Individual climate control, ample storage, a ducted vacuum system, and advanced security features such as an alarm, keyless entry, and intercom provide superior comfort and complete peace of mind. Additionally, a dripper system and water tank maintain the night-lit garden. With its coveted corner aspect and courtside address, this sole-owner property offers a high-style, low-maintenance lifestyle just a 5-minute walk from the tram, shopping village, and park.
For more information about this architectural haven please contact Owen Bowditch at Buxton Brighton on 0481 392 217.
